Appartamento    Vasto


Rif. 107502



 2    3    1    90mq      Salva tra i Preferiti


Descrizione

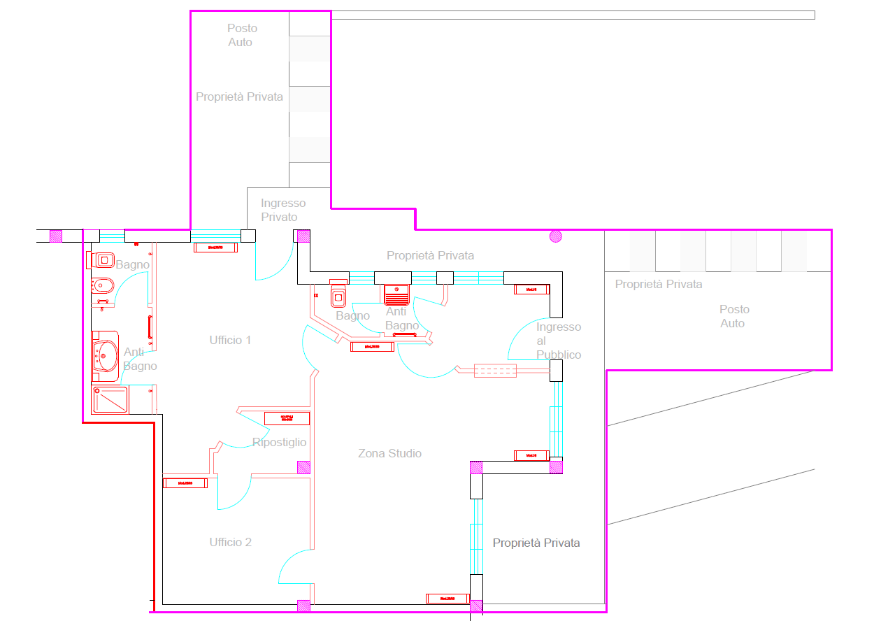
Vasto via Del porto, proponiamo in vendita grazioso appartamento piano terra con doppio ingresso indipendente ,l' immobile é composto da: ingresso, soggiorno con angolo cottura, 2 camere e 1 bagno, oltre 2 posti auto di propietà. Ideale per attività commerciali oltre che per l' uso abitativo come uffici o saloni

Condividi
           STAMPA IMMOBILE

Caratteristiche immobile

Localitá Vasto, Chieti
Superficie Fabbricato 90 mq
Condizioni Abitabile
Riscaldamento Autonomo
Locali 3
Bagni 1
Piano 0 ° piano
Terrazzo SI
Balcone SI
Giardino SI
Posto Auto SI

Classe Energetica


G

Ipe


175

Agenzia Immobiliare
Vasto

Corso Garibaldi 19 - 66054 Vasto (CH)
0873/469988
331/9689286
vasto@bonifazi.it

 Chiamaci  Cellulare

Contattaci ora per avere tutte le informazioni


Letta l'informativa del Franchisor e l'informativa dell'Agenzia ai sensi dell'Art. 13 D.Lgs 196/03, Presto il consenso al trattamento dei miei dati personali per le finalità di cui ai punti 1 e 2.